Natskyggen 75
Moderne og lys 1-plans rækkehus med ensidig taghældning
Alrune 97B med carport på siden.
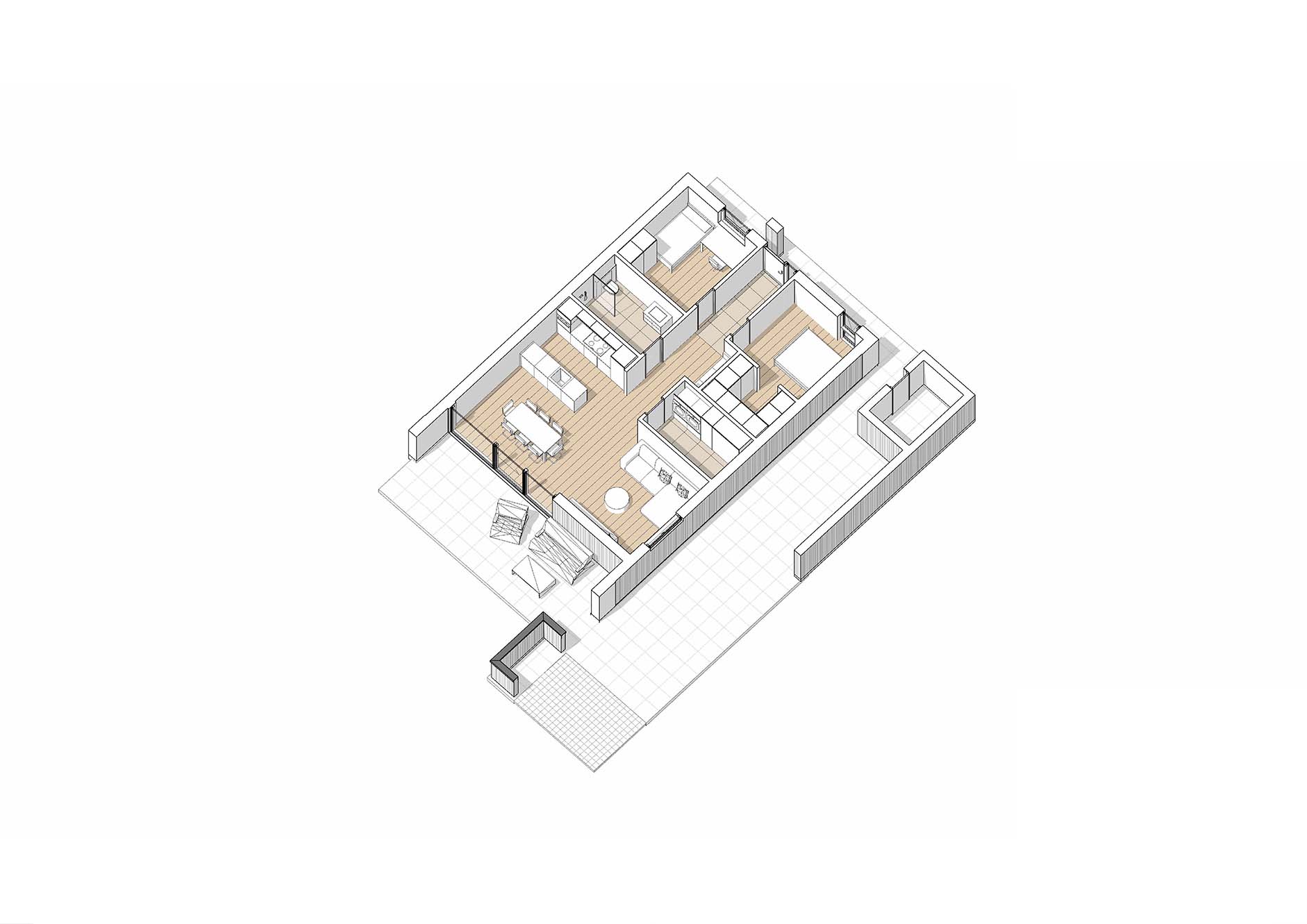
Alrune 1-plans rækkehus er både rummeligt og moderne, opført i en enkel og minimalistisk stil med en markant ensidig taghældning som en iøjnefaldende detalje.
Indretningen er nøje designet med fokus på lysindfald, især i det åbne og lyse opholdsrum. Herfra er der direkte adgang til en stor terrasse, hvor udemiljøet, lys og naturens skiften bliver en naturlig del af hverdagen i Alrune-huset.
Rækkehuset rummer et badeværelse og to værelser, hvoraf det ene er udstyret med walk-in-closet.
Alrune 1-plans boligen er ideel for førstegangskøbere eller seniorer, der ønsker en mindre bolig med minimal vedligeholdelse. Carporten, der har et tilhørende skur, giver god plads til både bil og opbevaring.
Der monteres elementer i køkken, badeværelser og bryggers fra Svane Køkkenet og hårde hvidevarer i køkkenet er fra AEG.
Du får mulighed for at tilpasse hjemmet præcist efter dine ønsker og behov. Du kan vælge mellem forskellige stilfulde køkkenelementer, der passer til husets moderne og minimalistiske design. Uanset om du foretrækker et klassisk, tidløst look eller en mere moderne, funktionel løsning, er der flere muligheder for at skabe et køkken, der passer perfekt til din livsstil.
Der er desuden også mulighed for medbestemmelse på valg af gulve.
